Reference na Google

Vítejte na stránkách nejlépe hodnocené realitní kanceláře na Moravě

Hodnocení na Firmy.cz zjistit více

Jsme nejlépe hodnocená realitka na Moravě


Reference na GoogleHodnocení na Firmy.cz zjistit více

RD 7+1 na prodej

Němčičky

Objednat prohlídku

Základní přehled

Chci nabídku na hypotéku
REZERVACE
Nemovitost Dům
Dispozice
Konstrukce Cihla
Užitná plocha 311 m2
Plocha zahrady 1 060 m2
Stav nemovitosti Ve výstavbě
Obec Němčičky
Lokace Klidná část obce
PENB třída G - Mimořádně nehospodárná
PENB ukazatel -
Ev. číslo 3117

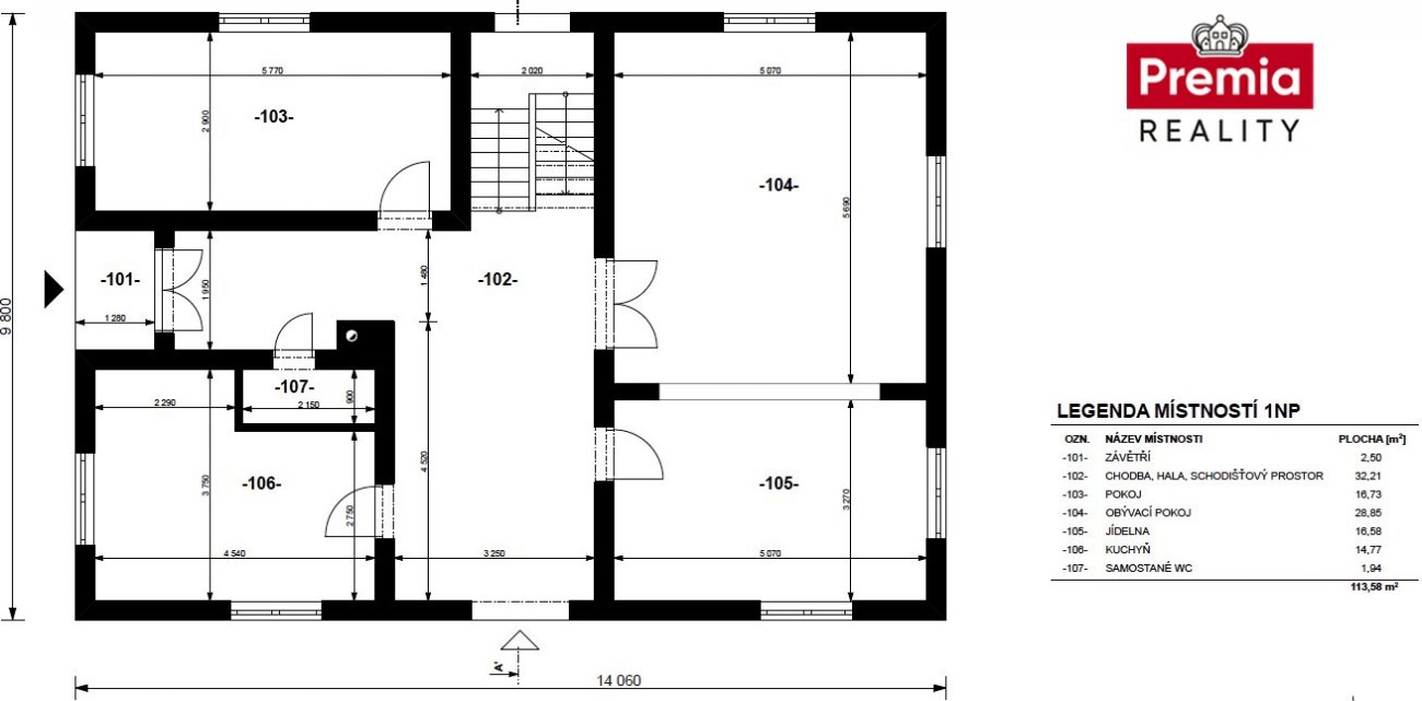
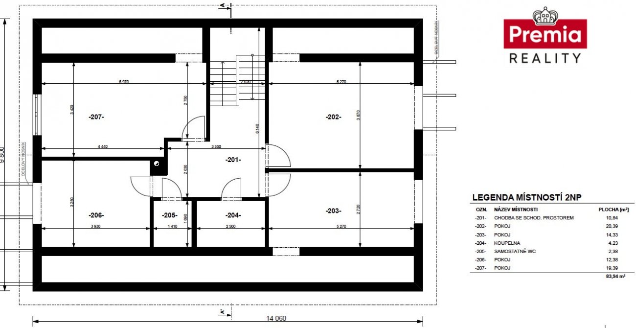
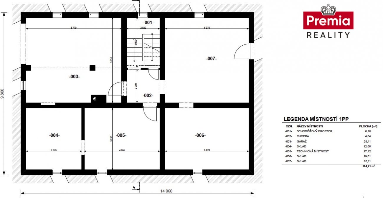
Nabízíme k prodeji rozestavěný rodinný dům o dispozici 7+1 stojící v klidné okrajové části obce Němčičky, která je vzdálená 12 km od Znojma a 70 km od Brna. Jedná se o zastřešenou hrubou stavbu, ze které po dokončení vznikne prostorný, nezávislý a energeticky úsporný dům, umístěný do hezké krajiny na konci obce v absolutním soukromí. Jsou zde částečně hotové omítky, vnitřní betony, rozvody odpadů, rozpracovaná elektřina. V přízemí jsou plastová okna a vstupní dveře. Dům je kompletně podsklepený s plánovanou garáží. V okolí domu je prostorná, kompletně srovnaná a částečně oplocená zahrada. V současné době je ve zvýšeném přízemí vstupní chodba navazující na halu, ze které se vchází do tří pokojů, kuchyně a WC. V 1. patře (podkroví) jsou čtyři pokoje, koupelna a WC. Dle nové studie je dům dispozičně upraven - viz. foto plánovaných půdorysů. Ve svahu vedle domu je také samostatný, např. vinný sklep. Dům je napojen na elektřinu. Před domem je přípojka plynu. Voda je dovedena z vlastní studny. Odpad je plánován do jímky vedle domu nebo dle nové studie přes domovní čistírnu odpadních vod. V obci je plánovaná výstavba kanalizace. V inzerátu je použité aktuální foto nemovitosti + vizualizace a půdorysy plánované realizace stavby. Zaujala vás tato nabídka? Neváhejte mne kontaktovat pro více informací nebo se domluvíme na prohlídce této nemovitosti. Průkaz energetické náročnosti: G* (nebyl vypracován).

CHCI VÍCE INFORMACÍ O MOŽNOSTECH VÝHODNÉHO FINANCOVÁNÍ.

Nabízíme k prodeji prostorný, rozestavěný rodinný dům o dispozici 7+1 s velkou zahradou v absolutním soukromí na konci obce Němčičky. Objednejte se na prohlídku.

Milan ELLER

Doplňkové informace

  • Školka
  • Škola
  • Pošta
  • Lékař
  • Místní úřad
  • Nák. Centrum
  • MHD
  • IDS
  • Autobus
  • Vlak
  • Silnice I.tř
  • Dálnice
  • Fotbal
  • Hokej
  • Koupaliště
  • Divadlo
  • Kino
  • Restaurace
  • Voda: Studna
  • Elektřina: 230V, 400V
  • Plyn:
  • Kanalizace:
  • Topení: Lokální tuhá paliva
  • Ohřev vody:

Mapa

Podobné nabídky
sleva
Dům 4+1 na prodej

Dům 4+1 na prodej

2 390 000 Kč
110 m2

DŮM Hostim

Dům 3+1 na prodej

Dům 3+1 na prodej

2 490 000 Kč
225 m2

DŮM Božice

Zpět na hlavní stranu